مشروع حي الجامعة 51

يقع المشروع بالقرب من دوار اقرأ في منطقة سكنية هادئة وقريبة من الخدمات

موقع المشروع

وصف المبنى

المشروع يتكون من 10 شقق, شقتين في كل طابق, وملحق رووف لشقق، الطابق الأخير بمساحة 235, وساحات أمامية مساحة 60 م2

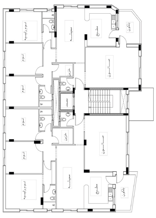
وصف الشقة

شقة 170 م2 : 3 نوم منهم 1 ماستر وغرفة خزين, غرفة معيشة مطبخ, صالون ضيوف, 3 حمامات بلكونة كبيرة وكراج لكل شقة

ميزات البناء

-تم تصميم البناء بأفضل المواصفات من حيث حداثة التصميم المعماري وجودة المواد المستعملة في البناء ويتم التنفيذ تحت أشراف هندسي :

-الخرسانة قوة كسر ٢٥٠

-جدران المبنى الخارجية مصنوعة من حجر رويشد و معزولة حرارياً بالبولسترين الأزرق للتوفير في استهلاك الطاقة و منع الرطوبة .

-يلكون

-النوافذ زجاج (Doublle Gllazes (14mm

-تدفئة مركزية لكل شقة تعمل على الغاز الطبيعي .

-العمارة مزودة بخط غاز مركزي يزود المطبخ في جميع الشقق

-اطلالة بانورامية لجميع الشقق

-فير بليس لكل شقة تعمل على الغز الطبيعي .

-الابجورات تعمل على الكهرباء في كامل الشقة

-ديكورات فاخرة لكامل الشقة, أرضية الصالون و المعيشة و المطبخ .

-الشقة مبلطة بأفخر أنواع البورسلان السعودي والأردني

-ساوند سیستم لجميع الشقق .

– مصاعد فاخرة .

-فير بليس لكل شقة.

-ابواب المداخل الرئيسية أبواب امان تركية عازلة للصوت .

-مغاسل حمامات كورين ذات تصميم عصري و مميز .

– حمامات معلقة و خلاطات فاخرة .

-تنكين ماء سعة 4 متر لكل شقة مع مضخات .

-تأسيس سخان شمسي لكل شقة .

-تأسيس كونديشينات .

-انتركم كاميرا يعمل على البطاقة والرقم السري

الكفالة

تلتزم الشركة بالكفالة والصيانة لمدة عام من تاريخ التسجيل (الطابو).