مشروع حي الجامعة 58

یقع المشروع بالقرب من الكلیة العلمیة الاسلامیة في منطقة سكنیة ھادئة وقریبة من الخدمات

موقع المشروع

وصف المبنى

المشروع یتكون من 10 شقق , شقتین في كل طابق , وملحق رووف لشقق الطابق الأخیر بمساحة 35 م 2 , وساحات أمامیة مساحة 50 م

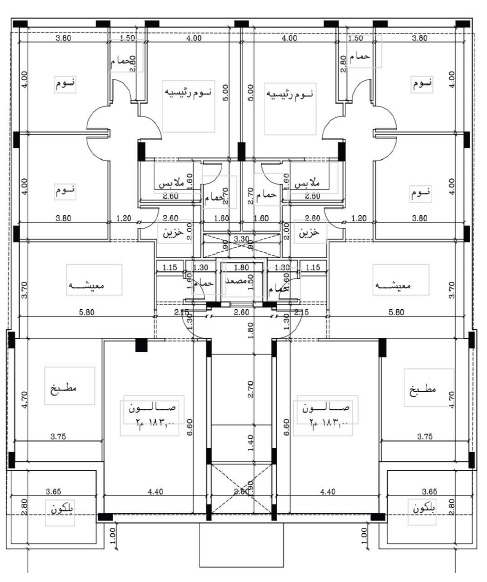
وصف الشقة

نوم منھم 1 ماستر وغرفة خزین , غرفة معیشة : شقة 180 م 2 مطبخ , صالون ضیوف , 3 حمامات , بلكونة كبیرة وكراج لكل شقة

ميزات البناء

-تم تصميم البناء بأفضل المواصفات من حيث حداثة التصميم المعماري وجودة المواد المستعملة في البناء ويتم التنفيذ تحت اشراف هندسي

-الخرسانة قوة كسر 250

-جدران المبنى الخارجية مصنوعة من حجر رويشد ومعزولة حراريا بالبولسترين الأزرق للتوفير في استهلاك الطاقة ومنع الرطوبة

-ديكورات فاخرة لكامل الشقة أرضية الصالون والمعيشة والمطبخ

– النوافذ زجاج  DOUBLLE GLASSEZ (14MM)

-تدفئة غاز مركزي راكب لكل شقة تعمل على الغاز الطبيعي

-تأسیس سخان شمسي لكل شقة

-تأسيس كونديشنات

-العمارة مزودة بخط غازي مركزي

-يزود المطبخ في جميع الشقق

-اطلالة بانورامية لجميع الشقق

-فير بليس لكل شقة

-الابجورات تعمل على الكهرباء في كامل الشقة

-الشقة مبلطة بأفخر أنواع البورسلان السعودي.

-ساوند سيستم لجميع الشقق

– مصاعد فاخرة

-أبواب المداخل الرئيسية أبواب أمان تركية عازلة للصوت

-مغاسل حمامات كورين ذات تصميم عصري ومميز

-حمامات معلقة وخلاطات فاخرة

– تنكين ماء سعة 4 متر لكل شقة مع مضخات

-انتركم كاميرا يعمل على البطاقة والرقم السري

الكفالة

تلتزم الشركة بالكفالة والصيانة لمدة عام من تاريخ التسجيل (الطابو).