يقع المشروع بالقرب من دوار قصر الأميرة بسمة في منطقة سكنية هادئة وقريبة من الخدمات
موقع المشروع
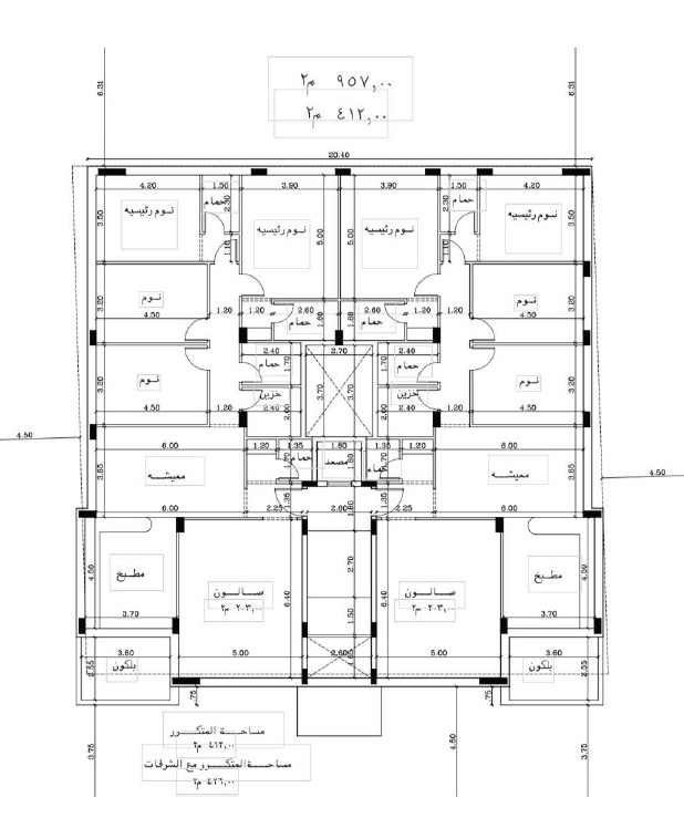
وصف المبنى
المشروع يتكون من 9 شقق شقتين في كل طابق, وملحق رووف لشقق الطابق الأخير بمساحة 235, وساحات أمامية مساحة 75م2 ومساحة خارجية للطابق الارضي الدوبلكس 150م2
وصف الشقة
4 غرف نوم 2 منهم ماستر – غرفة ضيوف مع بلكونة للمكرر وتراس للارضي والرووف – غرفة معيشة مع مطبخ نظام امريكي مفتوح – غرفة خزين – خادمة – مستودع لكل شقة وكراج
ميزات البناء
-تم تصميم البناء بأفضل المواصفات من حيث حداثة التصميم المعماري وجودة المواد المستعملة في البناء ويتم التنفيذ تحت اشراف هندسي
-الخرسانة قوة كسر 250
-جدران المبنى الخارجية مصنوعة من حجر رويشد ومعزولة حراريا بالبولسترين الأزرق للتوفير في استهلاك الطاقة ومنع الرطوبة
-ديكورات فاخرة لكامل الشقة أرضية الصالون والمعيشة والمطبخ
– النوافذ زجاج DOUBLLE GLASSEZ (14MM)
-تدفئة غاز مركزي راكب لكل شقة تعمل على الغاز الطبيعي
-تأسيس سخان شمسي لكل شقة
-تأسيس كونديشنات
-العمارة مزودة بخط غازي مركزي
-يزود المطبخ في جميع الشقق
-اطلالة بانورامية لجميع الشقق
-فير بليس لكل شقة
الابجورات تعمل على الكهرباء في كامل الشقة
-الشقة مبلطة بأفخر أنواع البورسلان السعودي
-ساوند سيستم لجميع الشقق
-مصاعد فاخرة
-أبواب المداخل الرئيسية أبواب أمان
-تركية عازلة للصوت
-مغاسل حمامات كورين ذات تصميم عصري ومميز
-حمامات معلقة وخلاطات فاخرة
-تنكين ماء سعة 4 متر لكل شقة مع مضخات
-انتركم كاميرا يعمل على البطاقة والرقم السري
الكفالة
تلتزم الشركة بالكفالة والصيانة لمدة عام من تاريخ التسجيل (الطابو).