مشروع أم زويتينة 57

يقع المشروع خلف مدرسة اليوبيل في منطقة سكنية هادئة وقريبة من الخدمات

موقع المشروع

وصف المبنى

المشروع يتكون من 10 شقق, شقتين في كل طابق, وملحق رووف لشقق الطابق الأخير بمساحة 235 وساحات أمامية مساحة 50م2

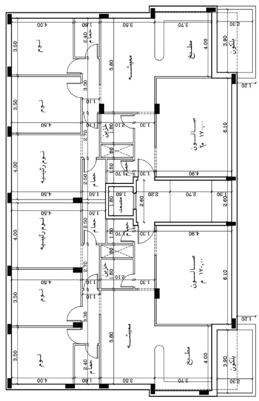
وصف الشقة

شقة 170 م2 : 3 نوم منهم 1 ماستر وغرفة خزين, غرفة معيشة مطبخ, صالون ضيوف, 3 حمامات, بلكونة كبيرة وكراج لكل شقة

ميزات البناء

-تم تصميم البناء بأفضل المواصفات من حيث حداثة التصميم المعماري وجودة المواد المستعملة في البناء ويتم التنفيذ تحت أشراف هندسي :

-الخرسانة قوة كسر ٢٥٠

-جدران المبنى الخارجية مصنوعة من حجر رويشد و معزولة حرارياً بالبولسترين الأزرق للتوفير في استهلاك الطاقة و منع الرطوبة .

-النوافذ زجاج (Doublle Gllazes (14mm

-تدفئة مركزية لكل شقة تعمل على الغاز الطبيعي .

-اطلالة بانورامية لجميع الشقق

-فير بليس لكل شقة تعمل على الغز الطبيعي .

-الابجورات تعمل على الكهرباء في كامل الشقة

-ساوند سیستم لجميع الشقق .

– مصاعد فاخرة .

-فير بليس لكل شقة

-ابواب المداخل الرئيسية أبواب امان تركية عازلة للصوت .

-مغاسل حمامات كورين ذات تصميم عصري و مميز .

– حمامات معلقة و خلاطات فاخرة .

تنكين ماء سعة 4 متر لكل شقة مع مضخات .

-تأسیس سخان شمسي لكل شقة .

-انتركم كاميرا يعمل على البطاقة والرقم السري

-ديكورات فاخرة لكامل الشقة, أرضية الصالون و المعيشة و المطبخ .

-العمارة مزودة بخط غاز مركزي يزود المطبخ في جميع الشقق

-الشقة مبلطة بأفخر أنواع البورسلان السعودي والأردني

الكفالة

تلتزم الشركة بالكفالة والصيانة لمدة عام من تاريخ التسجيل (الطابو).